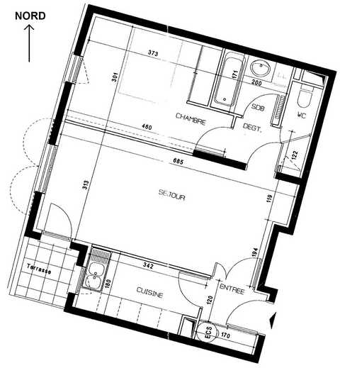
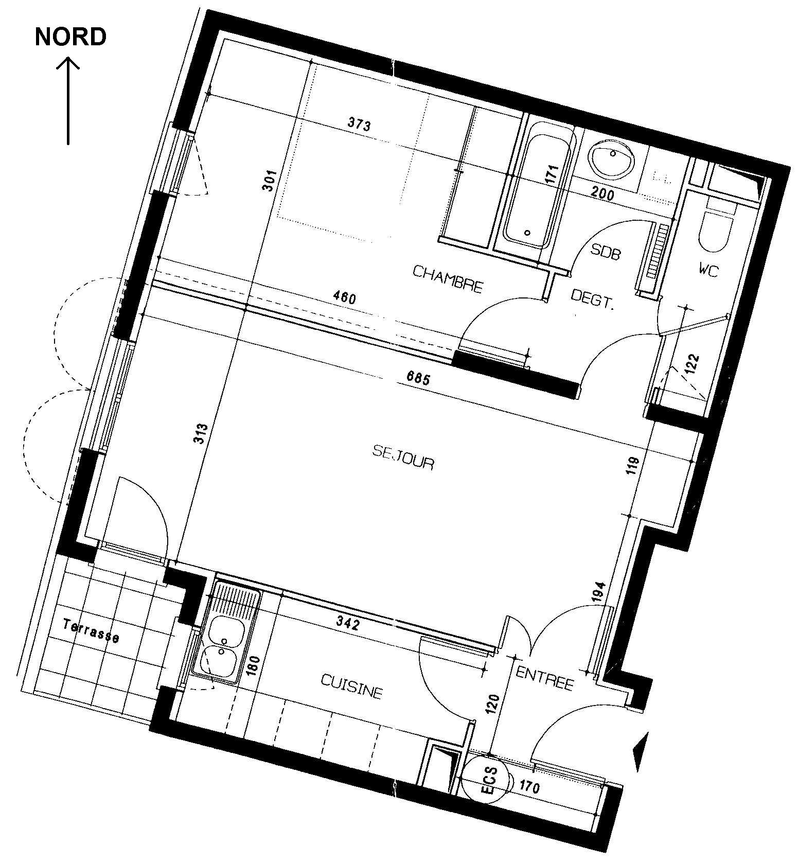
L'appartement

Supérficies

  • 2 pièces : salon, cuisine, chambre, salle de bain, WC séparé
  • Surface habitable de 49 m2
  • Entrée : 3 m2, avec un placard
  • Séjour : 21 m2
  • Cuisine : 6 m2, possibilité de lave-vaisselle
  • Chambre : 12 m2, avec un placard
  • Salle de bains : 3.5 m2, possibilité de lave-linge
  • WC : 1.2 m2
  • Dégagement : 2.5 m2
  • Terrasse : 2.5 m2

Cuisine

  • Cuisine aménagée avec tiroirs anti-pincements de doigts
  • Plaque de cuisson à induction
  • Four : HotPoint FB53C.2HA/IX
    (Multifonction Catalyse • Debut et fin de cuisson programmables a volonte • Programmateur electronique de debut et fin de cuisson • Ventilation peripherique de refroidissement • Porte grande vision • Porte double vitrage • Ventilation de porte)
  • Hotte aspirante

Chauffage

Diagnostic de performance énérgétique : D (204 kWh/m²/an, 6 kgCO2/m²/an), de 690 à 980 €/an
Radiateur Atlantic Divali horizontal blanc à inertie fonte, 1x 1250 W + 2x 1000 W, avec bridge CozyTouch, classe énérgétique 3 étoiles oeil, installé en 2021
Chauffe eau électrique Thermor MALICIO 2 carré vertical blanc 100L (équivalent à 170L), classe énérgétique B, installé en 2020

Etages

Au rez de chaussée, mais surélevé de 1.5m par rapport à la route

Plan